provincial-74 › Блог › Кран балка в гараже своими руками
Здравствуйте, ребята. Сегодня я поведаю свою историю о том, когда руки просят, а механизма нет.
В обычном гараже, с невысоким потолком, можно соорудить подъёмный кран и тягать им моторы, коробки передач, подвешивать различные части кузова машины и прочую утварь.
Как обычно, вопрос встаёт ребром: чем извлечь ДВС из авто наружу? Есть вариант применения подкатного крана (гуськового типа) с гидравлическим приводом. Вариант хороший, мобильный, кран складывается и перевозится. Попользовался сам — поделился с товарищем. Красота. Мне от него особо толку нет, поскольку нужны ещё руки для кантования этого всего дела. Плюс к тому: гараж стандартный 4х6, и, извлечённый агрегат, с таким краном вокруг разобранного авто не покатаешь. На улице теплело под конец весны, расцветали одуванчики, а у меня созрел план кран-балки и даже появился эскиз конструкции.
Первоначальный замысел был такой: смонтировать под потолком одну двутавровую балку поперёк проёму ворот над уровнем капота. Вся загвоздка в том, что такой конструкцией я не удовлетворю всех своих потребностей по перемещению груза в плане его транспорта в свободное место гаража. Локация погреба «заставляет» загонять машину чуть наискосок. Проблему не решить одной степенью свободы движения крановой каретки.
Усложнил проект до полноценной кран-балки с двумя степенями свободы перемещения. Затраты возросли более чем в 2 раза. Электрический тельфер ставить смысла нет (у меня не производственные мощности), поэтому привод заложен ручной. Конструкция крана следующая: две продольных и одна поперечная двутавровая балка. На продольных балках устанавливаются тележки и подвешивается третья — продольная балка. На продольной ещё одна тележка — для тали.
Теперь расчёты. Задаём максимальную массу груза, которую будем поднимать. А дальше выбираем тип и размер используемой балки Здесь. Следующим шагом считаем величину прогиба балки в этом калькуляторе. Если выбранная балка подходит по величине прогиба, её нужно пос
Необходимые материалы
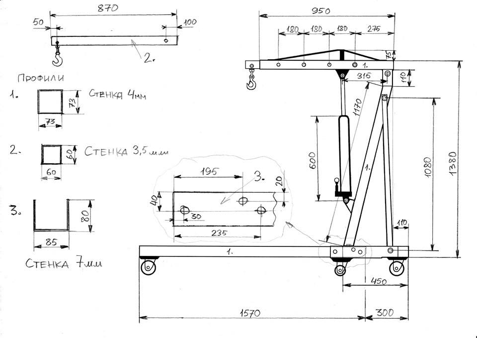
Кран делают из профиля длиной 7 м. Лучше всего использовать материал, толщина стенок которого составляет 7 мм. Механизм должен быть прочным, поэтому стоит выбирать профиль с сечением 80×80 мм.
Для изготовления грузоподъемного устройства также потребуется несколько труб. Подходят изделия по 700 мм, сечение которых составляет от 76 до 99 мм.
Для сооружения крана потребуется домкрат, можно взять с ВАЗа. Лучше всего использовать устройство, которое рассчитано на подъем грузов весом до 5 т. Для сооружения механизма необходимы 4 пластины толщиной 8 мм.
Для самостоятельной сборки крана нужно иметь следующий набор инструментов:
- дрель;
- инвертор для сварки;
- гаечные ключи;
- болгарку.
Сборка механизма не отличается сложностью, поэтому ее легко выполнить своими силами. или любое другое устройство после сборки можно покрасить.
Как сделать гидравлический кран гусь своими руками
Уважаемые посетители сайта «Лабуда блог» из представленного материала вы узнаете, как самостоятельно собрать гаражный гидравлический кран гусь, рассмотрим чертежи, пошаговые фото сборки, а так же видео испытания самодельного крана для демонтажа двигателя.
Каждый автомобилист за свою практику эксплуатирования автомобиля наверняка сталкивался с поломками двигателя, а не редко и с его заменой или капитальным ремонтом, но чтоб извлечь ДВС с посадочного места потребуется надежная лебедка или кран. Покупка специального оборудования обойдется как минимум 10 К, а устанавливать лебедку на потолок гаража не у всех есть такая возможность, потому как гаражные перекрытия довольно слабые.
Сделать кран типа «гусь» с системой гидравлического поднятия стрелы вполне можно и самостоятельно, для чего понадобится 7 метров профиля 80х80 мм и 3 мм толщина стенки. Пара труб 89 по 700 мм и 76-900 мм. Домкрат пятитонник 5т, пластины толщиной 8 мм 4 шт. Автор в данном случае купил только колеса 2 шт обычных, 2 шт поворотных, 1 м шпильки М-14 В ходе испытаний самодельный кран спокойно поднимает 250-300 кг, так же перевозились бетонные бордюры общим весом 500 кг, все отлично.
Устройство и принцип действия самодельного гидравлического крана «Гусь» по сути довольно простое, да и само название говорит само за себя) Состоит из опоры (разборная) с колесиками для передвижению по гаражу и подкату под автомобиль, вертикальной стойки с домкратом и непосредственно самой выдвижной стрелы с цепью и крюком.
Высота подъема короткой стрелы в нижней точке 90 см в верхней точке. Длинная стрела, низ 80 см, а в верхней 1800 мм и с выкрученным штоком домкрата низ 1400 мм и верх 2250 мм.
И так, давайте рассмотрим, что конкретно понадобится для сборки гаражного крана?
Материалы
- проф труба 80х80 длинной 7 м
- труба 89 мм по 700 мм 2 шт
- труба 76 длинна 900 мм
- колеса 6 шт, 2 поворотные, 2 обычных и 2 с тормозом
- металлические пластины 8 мм 4 шт
- домкрат 5 т
- цепь и крюк, шпилька М-14 длинна 1000 мм
Инструменты
- сварочный инвертор
- УШМ (болгарка)
- дрель
- набор гаечных ключей
Пошаговая инструкция по сборке гидравлического крана гусь своими руками.



Для начала следует ознакомиться с чертежами и схемами, а потом переходим к сборке.








Чертеж на тетрадном листе составил автор представленного ниже крана.

Сначала изготавливается стыковая часть часть опоры, она же будет разборной.



Приваривается вертикальная стойка с распоркой в нижней опорной плоскости.

Установка и крепление домкрата.





Стрела на полный вылет.

Эксперимент в гараже, подъем скутера)

Вес мопеда 120 кг

Вот такой кран вполне можно сделать своими руками с минимальными затратами. Просто, бюджетно и компактно, потому как кран разборный.

Так же автор снял небольшое видео испытаний.
https://youtube.com/watch?v=AdZNhLI9V7Q
голоса
Рейтинг статьи
Установка грузоподъемного механизма
Главным элементом крана является подъемный механизм, который может быть ручным или автоматическим. Тефлер состоит из троса и лебедки, устанавливаемой сбоку стойки. Трос движется благодаря вращению роликов. Дополнительной фиксации элементов не требуется, достаточно закрепить подъемник на стойке.
Самостоятельно изготовленный кран можно оснастить подъемным оборудованием, которое применяется в лифтах. Подобные механизмы отличаются высокой надежностью и способностью выдерживать массивные предметы.
Чтобы упростить выполнение ремонтных работ, допускается подключить к грузоподъемному элементу электрический привод. Для автоматизации конструкции подойдет двигатель мощностью 300-500 Вт. Электропривод монтируется к основанию кран-балки.
Укомплектованная электрическим приводом конструкция находит широкое применение при масштабном ремонте гаража и разборе автомобиля на запчасти, когда требуется выполнить комплекс работ. По принципу действия ручной и автоматизированный краны не имеют существенных отличий.
Опытные автовладельцы говорят, что кран-балка в гараже нужен редко, но если уж потребовался, то заменить его нечем. Он используется для снятия и установки двигателя, реже – для перемещения других грузов. Покупные механизмы стоят дорого и занимают много места, поэтому оптимальный выход для частного мастера – кран балка своими руками из подручных материалов.
Для того чтобы сделать гаражный подъёмник своими руками, вам потребуется:
- Для стоек – труба сечением 100х100, длиной 2350 мм – 2 шт.
- Для поперечной штанги – круглая труба диаметром 100 мм и длиной 4150 мм.
- Для опор – труба круглая диаметром 110 мм и длиной 600 мм – 2 шт.
- Для оснований и диагональный опор – уголок 100х100 мм.
- Болты М 16 для крепления опор к штангам.
- Колёса (например, от складской тележки) – 4 шт.
- Ручная лебёдка грузоподъемностью до 1 т.
- Трос и ролики (например, от привода дверей лифта).
Кран-балка необходим для перемещения различных грузов
Устройство кран-балки
Механизм представляет собой П-образную конструкцию (мост) с подъемным механизмом. В крупных автомастерских обе части могут быть подвижными. Мост движется по рельсам, подъёмник – по пролётной балке. В гаражах для экономии места рельсы не прокладывают, а мост оснащают колёсами.
Устройство кран-балки состоит из опор, пролетной балки и подъемного механизма. Опоры свариваются из металлических труб и швеллера. В качестве грузоподъемного механизма используется ручная или, реже, электрическая лебедка.
Краны-балки относятся к типу «управляемая с пола» в отличие от тех, которыми манипулируют из кабины. Для облегчения труда механика гаражный кран может быть оборудован электрической лебёдкой
. Это увеличит расходы на изготовление и обслуживание, но при необходимости часто демонтировать двигатели и другие тяжёлые агрегаты, окупит себя. В сельской местности, где есть перебои с электричеством, недостаточная мощность или перепады напряжения, стоит отдать предпочтение ручной лебёдке. Особенно если речь идёт о личном гараже, а не частной мастерской.
Выше мы рассмотрели, из чего состоит кран-балка: опоры, пролётная балка и подъёмник. Изготовление проходит в несколько этапов:
- Сварить вертикальные опоры в виде перевёрнутой буквы Т с двумя диагональными опорами.
- Приварить пролётную трубу, чтобы получилась П-образная конструкция.
- Установить колёса.
- Приварить к одной из боковых опор лебёдку.
- Установить подъёмный механизм: зафиксировать ролики, протянуть трос и подвесить крюк.
Готовые чертежи можно найти в сети, но проще сделать самому, подогнав изделие под размеры гаража.
Важно Инструкция по самостоятельному ремонту основных рабочих узлов трактора Т-40
Чертеж крана
Если этот вид подъемника по каким-то причинам не подходит, можно изготовить гаражный кран гусь своими руками – это займёт даже меньше времени. Кран-гусь имеет Г-образную форму, где вертикальная стойка оснащена домкратом, а не лебёдкой. Его подкатывают под автомобиль спереди и поднимают двигатель, качая гидравлический домкрат. Стрела двигается вверх и поднимает груз.
Ещё одно интересное решение, которое поможет сэкономить место – подвесной кран-балка. В отличие от опорной конструкции, описанной выше, пролётная балка крепится к потолку посредством рельсы (двутавровой балки). Этот вариант требует достаточной высоты потолка и прочности постройки.
Все устройства должны быть испытаны с грузом, вес которого на 20 % превышает максимальную планируемую нагрузку.
Завершение работы

Сборка крана из домкрата: 1 – стрела подъема выносная, 2 – домкрат, 3 – опорные ролики.
- На финишном этапе вам останется сделать верхнюю балку, пальцы и нижнюю балку.
- Для изготовления балки соберите уголок в П-образную фигуру. С одной стороны по центру приварите металлическую вставку длиной порядка 16 см.
- Сверху с помощью прихваток прикрепите пластину. Зашейте все элементы в одну конструкцию. Вы получите прямоугольный профиль.
- Сварите вставку с пластиной. С обратной стороны следует заглушить профиль металлической пластиной, а затем обварить по периметру и зачистить.
- К центру этого же торца приварите втулку для сопряжения с задним узлом.
- К передней грани верхней балки приварите пару направляющих для домкрата. Сделайте в них отверстия под стопор домкрата. В отверстия вставьте 8-миллиметровые болты с гайками.
- К верхней части приварите втулку с роликами, а также втулку для защитного пальца.
- Сделайте пальцы из стального стержня 12 мм. Отрежьте заготовки по размеру и загните. Всего нужно 3 пальца.
- Изготовьте нижнюю гайку. Вам понадобится уголок на 32 мм и гайка М16. Соберите уголки в квадратный профиль. Используйте прихватки и сварку. С одного конца приварите гайку М16, предварительно закрутив болт, чтобы не забилась резьба. Этот элемент будет обеспечивать сочленение с передним узлом.
- С противоположного конца сделайте 12-миллиметровое отверстие для болта на расстоянии в 2 см от края к центру. Данный элемент обеспечит соединение с задним узлом.
На этом сборка самодельного крана закончена. Можете устанавливать домкрат и использовать агрегат по назначению. Удачной работы!
Конструкция из подручных средств для работ в гараже
Такой самодельный подъемник особенно нужен тем, кто производит ремонт автомобилей, для снятия или установки тяжелых узлов и агрегатов машины.

Сборка крана производится со станины, которая сваривается из трубы, железного профиля, уголков. Проще их установить крест-накрест, так как такое расположение обеспечивает большую устойчивость крана. На края крепятся колесики для удобства передвижения по гаражу.
Вертикально по центру из тех же материалов устанавливается мачта. В нижней части привариваются укосины, которые идут к станине для укрепления конструкции. Гаражный кран делается невысоким, необходимо учитывать пространство гаража. К станине одним краем крепится стрела из железного профиля, так чтобы она могла свободно перемещаться вверх на 90 градусов параллельно полу.
Стрела изготавливается телескопическая, поэтому вовнутрь нее устанавливается еще один профиль с меньшими размерами, но так, чтобы внутри не было большого люфта. На первом, более толстом колене делается фиксатор для зажима выдвинутого второго колена и усиливаются края в том месте, где выходит второе более тонкое колено.
Вверху вертикальной мачты рассчитывается расстояние и устанавливается упор под гидравлический домкрат. На стреле тоже нужно сделать под него упор. Крюк крепится к концу второго колена стрелы. В этом колене делаются отверстия под фиксатор, расположенный на первом колене.
После полного закрепления всех соединений на площадку вертикальной мачты устанавливается гидравлический домкрат, который подъемным пятаком упирается в упор, расположенный на стреле. При помощи ручки приводится в действие подъемник, поднимающий стрелу.

Базовые требования к изготовлению ножничного подъемного механизма
Важно во время изготовления подъемного механизма следить, чтобы конструкция соответствовала основным требованиям. Если проигнорировать основные нормы, то работать устройство будет некорректно, и механизм может представлять угрозу для того человека, кто им пользуется
Если проигнорировать основные нормы, то работать устройство будет некорректно, и механизм может представлять угрозу для того человека, кто им пользуется.
Бывают ножничные столы, которые поднимаются на высоту до одного метра, а некоторые устройства могут поднимать до высоты двух-трех метров.
Читайте: Статья: Санузел в трешке для пятерых
Учитывая данный показатель, важно соблюдать определенные требования и правила безопасности. Анализируя будущую конструкцию, необходимо правильно, в соответствии с нормами:
Анализируя будущую конструкцию, необходимо правильно, в соответствии с нормами:
- выбрать электрический или гидравлический привод;
- разработать схему подъемника;
- подобрать систему регулирования и управления устройством;
- продумать крепежи оборудования к полу.
Изготавливают как самоходные, так и стационарные подъемные механизмы.
Стационарное устройство надежно закрепляется к бетонному полу, а самоходные подъемные столы при необходимости перемещают куда требуется.
Стационарные устройства гораздо безопаснее для человека и имущества, чем передвижные приспособления.
Установка грузоподъемного механизма
Главным элементом крана является подъемный механизм, который может быть ручным или автоматическим. Тефлер состоит из троса и лебедки, устанавливаемой сбоку стойки. Трос движется благодаря вращению роликов. Дополнительной фиксации элементов не требуется, достаточно закрепить подъемник на стойке.
Самостоятельно изготовленный кран можно оснастить подъемным оборудованием, которое применяется в лифтах. Подобные механизмы отличаются высокой надежностью и способностью выдерживать массивные предметы.
Чтобы упростить выполнение ремонтных работ, допускается подключить к грузоподъемному элементу электрический привод. Для автоматизации конструкции подойдет двигатель мощностью 300-500 Вт. Электропривод монтируется к основанию кран-балки.
Укомплектованная электрическим приводом конструкция находит широкое применение при масштабном ремонте гаража и разборе автомобиля на запчасти, когда требуется выполнить комплекс работ. По принципу действия ручной и автоматизированный краны не имеют существенных отличий.
Опытные автовладельцы говорят, что кран-балка в гараже нужен редко, но если уж потребовался, то заменить его нечем. Он используется для снятия и установки двигателя, реже – для перемещения других грузов. Покупные механизмы стоят дорого и занимают много места, поэтому оптимальный выход для частного мастера – кран балка своими руками из подручных материалов.
Для того чтобы сделать гаражный подъёмник своими руками, вам потребуется:
- Для стоек – труба сечением 100х100, длиной 2350 мм – 2 шт.
- Для поперечной штанги – круглая труба диаметром 100 мм и длиной 4150 мм.
- Для опор – труба круглая диаметром 110 мм и длиной 600 мм – 2 шт.
- Для оснований и диагональный опор – уголок 100х100 мм.
- Болты М 16 для крепления опор к штангам.
- Колёса (например, от складской тележки) – 4 шт.
- Ручная лебёдка грузоподъемностью до 1 т.
- Трос и ролики (например, от привода дверей лифта).
Кран-балка необходим для перемещения различных грузов
Устройство кран-балки
Механизм представляет собой П-образную конструкцию (мост) с подъемным механизмом. В крупных автомастерских обе части могут быть подвижными. Мост движется по рельсам, подъёмник – по пролётной балке. В гаражах для экономии места рельсы не прокладывают, а мост оснащают колёсами.
Устройство кран-балки состоит из опор, пролетной балки и подъемного механизма. Опоры свариваются из металлических труб и швеллера. В качестве грузоподъемного механизма используется ручная или, реже, электрическая лебедка.
Краны-балки относятся к типу «управляемая с пола» в отличие от тех, которыми манипулируют из кабины. Для облегчения труда механика гаражный кран может быть оборудован электрической лебёдкой
. Это увеличит расходы на изготовление и обслуживание, но при необходимости часто демонтировать двигатели и другие тяжёлые агрегаты, окупит себя. В сельской местности, где есть перебои с электричеством, недостаточная мощность или перепады напряжения, стоит отдать предпочтение ручной лебёдке. Особенно если речь идёт о личном гараже, а не частной мастерской.
Выше мы рассмотрели, из чего состоит кран-балка: опоры, пролётная балка и подъёмник. Изготовление проходит в несколько этапов:
- Сварить вертикальные опоры в виде перевёрнутой буквы Т с двумя диагональными опорами.
- Приварить пролётную трубу, чтобы получилась П-образная конструкция.
- Установить колёса.
- Приварить к одной из боковых опор лебёдку.
- Установить подъёмный механизм: зафиксировать ролики, протянуть трос и подвесить крюк.
Готовые чертежи можно найти в сети, но проще сделать самому, подогнав изделие под размеры гаража.
Важно Технические характеристики автомобильной крановой установки КС-3574 на базе Урал-5557
Чертеж крана
Если этот вид подъемника по каким-то причинам не подходит, можно изготовить гаражный кран гусь своими руками – это займёт даже меньше времени. Кран-гусь имеет Г-образную форму, где вертикальная стойка оснащена домкратом, а не лебёдкой. Его подкатывают под автомобиль спереди и поднимают двигатель, качая гидравлический домкрат. Стрела двигается вверх и поднимает груз.
Ещё одно интересное решение, которое поможет сэкономить место – подвесной кран-балка. В отличие от опорной конструкции, описанной выше, пролётная балка крепится к потолку посредством рельсы (двутавровой балки). Этот вариант требует достаточной высоты потолка и прочности постройки.
Все устройства должны быть испытаны с грузом, вес которого на 20 % превышает максимальную планируемую нагрузку.
Как работает винтовой домкрат
Принцип работы винтового домкрата для легкового автомобиля заключается в перемещении рамной конструкции в заданном направлении под действием смещения гайки винтовой передачи.
Например, в ромбическом домкрате винт с одной стороны закреплен во втулке с возможностью вращения. С противоположной стороны находится гайка, которая жестко закреплена в точке соединения стоек. При вращении винт перемещает гайку и изменяет расстояние между противоположными точками ромбической конструкции. Если горизонтальные противоположные точки приближаются, то вертикальные отдаляются, что и является рабочим движением на подъем.
Другие домкраты работают по примерно таким же алгоритмам с той лишь разницей, что направление рабочих движений в кинематических схемах и рычажные системы отличаются.

Исключением является домкрат бутылочного типа. Он не использует в своей конструкции систему рычагов: здесь работает телескопический принцип винтовой передачи. Но ограниченность диапазона рабочих высот делает этот домкрат малопригодным для обычного легкового автомобиля.
Покупка или самостоятельное изготовление?
У человека, который столкнулся с необходимостью завести себе автолифт, есть несколько вариантов решения этой проблемы. Новые подъемники всех типов можно купить в магазине или приобрести подходящий пользованный аппарат «с рук». Есть и третий вариант – сделать самому.
На первый взгляд, изготовленный самостоятельно автолифт должен стоить намного дешевле нового, поскольку в его цену не заложена зарплата рабочего, который над ним работал. Но так кажется только на первый взгляд. Новые китайские автолифты обойдутся в 90-100 тысяч рублей, в то же время материалы для собственного подъемника буду стоить от 100 до 120 тысяч.
С другой стороны, бившие в употреблении автолифты от дорогих фирм, могут обойтись дороже, чем новые китайские подъемники. Таким образом, основным критерием подбора остается надежность механизма.

При самостоятельном изготовлении подъемника берется за основу разработанная кем-то схема нагрузок, на которую и приходиться полагаться при эксплуатации автолифта. Прежде чем принять решение покупать подъемник и сделать его самому, каждый должен ответить на вопрос, кому он доверяет больше: себе или рабочим завода и технологиям, которые создали тот или иной автолифт?
Видео: автоподъемник своими руками.
Инструменты и материалы
Для создания в гараже данного механизма потребуются следующие инструменты и материалы.
- Металлопрокат – уголок, швеллер, двутавр.
- Подшипники разных размеров.
- Сварочный аппарат с электродами.
- «Болгарка».
- Дрель или сверлильный станок.
- Исполнительный механизм – таль, тельфер.
- Инструмент для разметки (линейка или штангенциркуль, рулетка, мел или маркер)
- Болты, шайбы, гайки.
Длина металлопроката подбирается исходя из размеров помещения, а его марка определяется из расчетов, указанных далее. Подшипники можно взять любого подходящего размера. Количество подбирается по принципу: 4 шт. для одной салазки, 4 шт. – для второй, плюс 4 шт. для каретки (корпуса подъемника). Итого: 12 штук. Подшипники для салазок должны быть одного размера, в каретку можно установить подшипники такого же размера или на один размер больше или меньше. Болты для крепления необходимо подбирать с крупной метрической резьбой. Исполнительное устройство подбирается по соответствию его максимальной грузоподъемности расчетным нагрузкам.
Гидравлический бутылочный домкрат
Его удобно возить с собой: занимает минимум места в багажнике. Двухштоковая конструкция имеет большой ход, которого точно хватит даже для подъёма кроссовера с большим клиренсом. Опускается домкрат одним движением. Удобно использовать и при ремонте, и для сезонной замены колёс, и на бездорожье. Открытых деталей почти нет, риск извалять механизм в грязи минимален.
Из недостатков отметим скромную опорную площадку: для работы на грунте необходимо подкладывать под кузов что-то плоское, например, доску. А вот высота подхвата не самая маленькая: если машина «утонет» на бездорожье, домкрат придётся окапывать.
1. Сорокин. Домкрат надувной Цена ~ 5500 ₽Заявленная грузоподъёмность 3 т |
2. Сорокин Bottle Line Jack. Домкрат двухштоковый телескопический Цена ~ 1600 ₽Заявленная грузоподъёмность 2 т |

Резиновые опоры берегут пороги от повреждений. Стоят около 200 рублей, подходят для бутылочных и подкатных домкратов.
Резиновые опоры берегут пороги от повреждений. Стоят около 200 рублей, подходят для бутылочных и подкатных домкратов.

У механического бутылочного домкрата в корпусе спрятаны прямозубая коническая передача и ходовой винт. Если перед началом эксплуатации добавить смазки ШРУС, домкрат проживёт дольше, а рукоятку будет легче вращать.
У механического бутылочного домкрата в корпусе спрятаны прямозубая коническая передача и ходовой винт. Если перед началом эксплуатации добавить смазки ШРУС, домкрат проживёт дольше, а рукоятку будет легче вращать.
Таль для гаража: изготовление привода
Таль для подъема грузов можно изготовить самостоятельно. За его основу берут тормозной рычаг, который раньше стоял на грузовом автомобиле. В машине такой рычаг способствует подводу колодок и уменьшению зазора между ними.
Чтобы сделать таль своими руками, нужно обладать навыками электросварочных и токарных работ.
Вал разжимного кулака обрезают до нужного размера при помощи токарного станка. Вал оснащают двумя шайбами. Вся конструкция называется намоточным барабаном. Одну шайбу оснащают изнутри кольцом так, чтобы оно не мешало свободному прохождению троса.
Как делать привод:
Перед изготовлением подъемника необходимо подготовить чертежи. Готовое приспособление можно использовать, чтобы поднять и спустить центробежный насос и другие виды грузов. В качестве альтернативы этому виду крана можно сделать гидравлический кран «Гусь».
Для подъема двигателя и кузова в гараже понадобится специальный механизм. Стоят они дорого, поэтому сэкономить можно на самостоятельном изготовлении. Для этого необходимо предварительно ознакомиться с видами подъемных механизмов и их функциональностью. После выбора вида механизма нужно заняться составлением чертежей и плана сборки конструкции. Для самостоятельного изготовления лучше обладать навыками токарных работ и навыками в сборке механизмов.
Источник
Технология сборки крана своими руками
При наличии определенных навыков собрать механизм собственноручно не составит труда
Для этого важно составить предварительный чертеж конструкции, грамотно выбрать материалы и четко следовать инструкции сборки
Схемы и чертежи
Ниже представлены примерные чертежи гидравлического крана. Точные расчеты требуется производить самостоятельно, исходя из параметров конкретного гаража.
Выбор материала
Для самостоятельного построения гаражного подъемника рекомендуется сначала закупить весь требующийся материал:
- 3 стальных уголка с параметрами 7.5х7.5х0.8 сантиметров.
- «Червячный» редуктор, минимальная грузоподъемность которого начинается от 300 килограмм, а придаточный показатель – 60 килограмм.
- Крепкая стальная плита толщиной в один сантиметр. При наличии старого станка по металлу можно ее взять из него, посторонней помощи для этого не понадобится.
- Около 10 подходящих болтов.
- 2 плотных металлических цепи с диаметром от двух до трех сантиметров. Кран предназначается для работы с очень тяжелыми материалами – следует внимательно следить за качеством металла.
- Крюк.
- Стальной трос диаметром 5 миллиметров.
- 2 шпонки с разными параметрами в форме звездочки.
Пошаговая инструкция построения
Процесс сборки и установки самодельного гаражного крана не выглядит сложным:
- стальные уголки требуется установить на параллельных стенах;
- на них закрепить стальную плиту с помощью болтов «М8»;
- на плите зафиксировать «червячный» редуктор;
- установить шпонку большего размера на приводном вале;
- на заранее обозначенном месте просверлить дырку, провести в нее цепь и сомкнуть ее в кольцо;
- зафиксировать шпонку меньшего размера на выходном вале редуктора;
- просверлить в плите еще 2 отверстия;
- продеть через отверстия вторую цепь, где один конец окажется на маленькой шпонке, а на втором установлен крюк.
Самостоятельная установка крана имеет ряд важных преимуществ. Например, стоимость самодельного механизма почти в два раза ниже покупного.
</index>Поделиться ссылкой:<index>
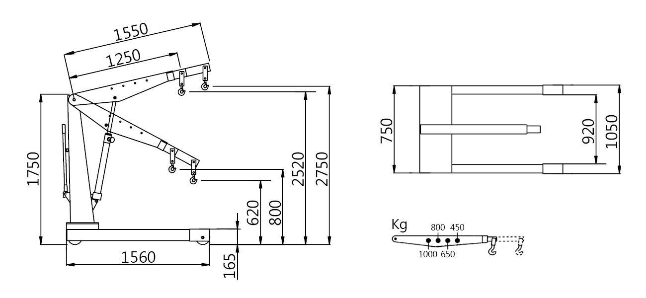
Гаражный кран-гусь своими руками может быть сделан из подручных материалов, которые имеются в гараже. Это устройство требуется, когда необходимо отремонтировать автомобиль, например, извлечь из машины двигатель внутреннего сгорания.
Как пользоваться
Телескопическая стрела механизма может быть установлена в нескольких положениях. Гусь маневренный, им может управлять 1 человек. Оборудование поднимает достаточно тяжелые грузы за счет установленного домкрата, никаких дополнительных аксессуаров и устройств для перемещения тяжестей не нужно.
Для того чтобы поднять двигатель автомобиля, нужно открыть капот, подкатить кран. Его устанавливают так, чтобы «ноги» размещались под машиной, а цепь с крюком нависала над мотором.
Двигатель имеет проушины, за них зацепляют тросы, а уже к ним подводят цепь с крюком. Установив монтировку, качают домкрат. Он поднимает стрелу, вместе с ней идет вверх двигатель.
После того как ремонт машины будет завершен, мотор опускают на место, снимают крюк. Кран откатывают от автомобиля. Если есть необходимость, его можно разобрать.
- https://www.samodelkindrug.ru/kak-sdelat-gidravlicheskij-kran-gus/
- https://garazhyk.ru/obustrojstvo/kran-gidravlicheskij
- https://specmahina.ru/kran/garazhnyy-gus-svoimi-rukami.html
Как пользоваться
Телескопическая стрела механизма может быть установлена в нескольких положениях. Гусь маневренный, им может управлять 1 человек. Оборудование поднимает достаточно тяжелые грузы за счет установленного домкрата, никаких дополнительных аксессуаров и устройств для перемещения тяжестей не нужно.
Для полноценного удобства использования собственного гаража иногда требуется оборудование для подъема тяжеловесных частей автомобиля. Оптимальным вариантом решения данной проблемы служит кран гидравлический. Уникальное строение позволяет совершать перестановку небольших грузов при незначительной затрате усилий автомеханика или владельца авто.
Гидравлический кран выполняется из прочного металла и характеризуется устойчивой конструкцией. Главный принцип строения механизма: устойчивая опора при небольшом собственном весе. Это помогает с легкостью поднимать грузы до трех тонн, но максимально – на два метра над землей.
Гаражный кран применяют для:
- снятия двигателя;
- подъема балок, мостов;
- перемещения габаритных узлов.
Кран содержит гидравлический привод и работает по системе сообщающихся сосудов. Метод позволяет сделать подъем плавным.
Стационарные
Стационарный кран устанавливается в больших автосервисах и надежно крепится к монолитному фундаменту. Механизм обладает стрелой с поворотной системой и оснащен ручным приводом. Позволяет проводить работы лишь с одним автомобилем неотрывно.
Переносные
Подкатной гидравлический кран обладает колесиками на основании. Опорой же выступают нижние металлические балки, от этого теряются показания грузоподъемности. Лучше выбирать кран с массивной треугольной опорой. По конструкции они подразделяются:
- на литые цельные опоры с ограниченным вылетом стрелы, но хорошими показателями грузоподъемности;
- на телескопические или складные – обладают увеличенным вылетом стрелы, но снижают грузоподъемность в разы.
Важно! Складные агрегаты нуждаются в четком следовании инструкции по поднятию разрешенного груза. Стрела не выдерживает и, при несоблюдении дозволенных норм, срывается






































