Область применения
Данная машина будет крайне полезной в сельском хозяйстве, ведь с помощью неё можно проделывать широчайший спектр работ, например уборка снега с помощью минитрактора. Поэтому даже старые мотоблоки можно весьма успешно использовать для создания минитракторов, которые вам более чем пригодятся.
Сделать это можно и из нового мотоблока, если считаете, что компактный трактор вам нужнее.
В сельском хозяйстве техника играет очень важную роль. Она и способ передвижения, и превосходный помощник, и тягач, и силач. Поэтому нет ничего лучше, чем частный дом с хозяйством, на котором есть полный автопарк всей необходимой техники. Особенно широко применимы тракторы (например, тракторы МТЗ).
Минитрактор
Они не обязательно должны быть большими и мощными, ведь даже маленький и компактный трактор способен оказать существенную помощь, стать хорошим транспортом и способом перевозки грузов. Словом, применения для подобной техники может найтись сколько удобно, ведь при работе на земле можно придумать практически любые «задания».
Но небольшие тракторы чаще всего применяются именно в качестве транспорта, а также передвижных площадок, на которые можно установить различную сельскохозяйственную технику.
Если оснастить минитрактор ковшом, то получится аналог экскаватора (см. например экскаватор Hyundai), с помощью которого можно копать и разрыхлять землю, что просто необходимо в сельском хозяйстве.
Кроме того, с минитрактором вы сможете даже с удобством выпасать скот, ведь вместо пешего передвижения вы будете ехать верхом на своём стальном коне.
Реально ли сделать минитрактор самому? Если вы не представляете себе, как из мотоблока сделать минитрактор своими руками, то мы готовы вас обрадовать: всё легче, чем кажется. Чтобы вдохновиться, можете посмотреть на то, как сделать минитрактор из мотоблока своими руками видео. Также, предлагаем посмотреть видео про самодельные минитратора – тут.
Переломка и переделка техники — не самый трудный процесс. Кроме того, Вам не обязательно делать самостоятельно абсолютно всё. Существуют специальные наборы, которые позволят вам без проблем превратить один вид техники в другой за небольшой промежуток времени. В такой набор входят следующие детали:
Рама
- Рама со специальным пространством для установки для двигателя
- Педали
- Сидения
- Рычаги для отключения блокировки полуосей
- Руль
- Крылья
- Передняя балка и задняя навеска
Данный набор идеально подойдёт для тех, кто задаётся вопросом, как переделать мотоблок в минитрактор быстро. Но есть немало людей, которые подходят к данной идеи с подлинным энтузиазмом, а потому хотят провести все работы самостоятельно, не используя готовые наборы деталей.
Именно для них расскажем, как самому сделать минитрактор из мотоблока.
Как сделать раму
После подготовки инструментов и комплектующих, необходимых для создания минитрактора, приступают к «перекройке» рамы мотоблока, чтобы, в соответствии с чертежом, приспособить её под дополнительную пару колёс. Платформу будущей самодельной машины можно сделать цельнометаллической или переломной с использованием швеллеров или профильных металлических труб. Продольные и поперечные лонжероны сделать несложно – их нарезают болгаркой и соединяют электросваркой или крепёжными элементами. Для большей надёжности болтовые соединения комбинируют с дополнительной проваркой швов.

При трансформации культиватора в минитрактор часто используют именно переломку, состоящую из двух независимых полурам, соединенных между собой при помощи шарниров. Благодаря такой конструкции все четыре колеса трактора почти всегда контактируют с грунтом, и практически не происходит их вывешивание при эксплуатации самоделки по неровной поверхности или скользкой дороге. Это позволяет повысить устойчивость минитрактора из мотоблока, улучшить его маневренность и проходимость при осуществлении пахотных и транспортных работ.
К переднему или заднему участку подготовленной рамы монтируют по схеме навесное устройство, которое позволит трактору сделать возможной работу со вспомогательными устройствами. Можно сразу сзади приварить фаркоп для буксировки прицепа — это ещё больше расширить функциональные возможности самодельного мототрактора, полученного из мотоблока.
Изготовление трактора из автомобиля ГАЗ – порядок сборки
Если для выполнения переделки были правильно подобраны чертежи и грамотно рассчитана мощность двигателя, то с самой сборкой самодельного трактора на базе машины ГАЗ не возникнет никаких проблем. Главное, чтобы под руками всегда были необходимые инструменты, которые помогут подогнать ту, или иную деталь. Нередко для изготовления трактора требуются новые кованые детали – их следует заказать заранее.
Очень важно предварительно продумать конструкцию трактора на базе машины ГАЗ. Очень часто энтузиасты собирают агрегат-переломку с четырьмя ведущими колесами
В такой самодельной машине две составляющие ходовой части крепятся друг к другу при помощи шарнирных механизмов – это позволяет использовать трактор в самых сложных условиях, выполняя с его помощью широкий спектр задач.
Трактор из ГАЗ-69, также как и агрегат из любой другой модели, должен состоять из трех основных компонентов: двигателя, трансмиссии и рулевых передаточных механизмов
Важно чтобы каждый из используемых узлов находился в хорошем состоянии, чтобы исключить риск преждевременной поломки самодельного агрегата
Порядок сборки трактора своими руками должен выглядеть следующим образом:
Для начала необходимо собрать раму, учитывая, при этом, компоновку ходовой части трактора. Если для эксплуатации не требуется изготовление переломки, то можно собрать цельный каркас, в конструкцию которого должны входить правый и левый лонжероны, передний и задний мост, а также траверсы к ним. Для изготовления поперечной балки нужно использовать не слишком массивный стальной швеллер. Лонжероны лучше всего делать из швеллера «десятки», а траверсы – из швеллера «двенадцатки» или «шестнадцатки»;
На раму в передней ее части нужно установить и надежно закрепить двигатель. В большинстве случаев энтузиасты используют для оснащения самодельных тракторов ДВС марки УД-2, УД-4, МТ-9 или М-67. В случае если планируется изготовление трактора на базе двигателя от ГАЗ-66 с приводом на все 4 колеса, то при сборке понадобится повысить передаточные числа используемой трансмиссии, что приведет к потере мощности мотора – в итоге ее не хватит для стабильной работы всех четырех колес. В связи с этим, оптимальным вариантом станет трактор с двигателем ГАЗ-51 с приводом только на задние колеса;
Если самодельный трактор из ГАЗ будет регулярно использоваться под высоким нагрузками, то мотору обязательно понадобится дополнительное охлаждения. Лучше всего использовать уже готовую охлаждающую систему от автомобилей УАЗ или других отечественных внедорожников;
После монтажа мотора трактор на базе автомобиля ГАЗ потребуется оборудовать трансмиссией и сцеплением
Очень важно разместить КПП так, чтобы ее рычаг располагался в непосредственной близости к водителю, а к бачку коробки был доступ для беспрепятственной заливки трансмиссионного масла;
Сиденье, органы управления и педали также можно взять от автомобиля ГАЗ. Их монтаж не должен мешать нормальной работе водителя, а сами органы должны плавно передвигаться по своих амплитудах;
Чтобы иметь возможность использовать фары освещения и другие электрические приборы, сельскохозяйственную машину на базе автомобиля ГАЗ следует оборудовать аккумулятором от автомобиля ГАЗ, а также проложить штатную проводку, также взятую из машины;
Для расширения функционала трактора и возможности использования для работы с ним разных навесных орудий, агрегат необходимо оснастить гидравлической системой – ее «донором» может стать трактор ЧТЗ
При этом, все детали гидравлической системы для самодельного агрегата должны быть взяты от одного, и того же трактора;
При желании трактор можно оборудовать кабиной. Ее можно сварить из цельного стального листа, который будет удерживаться на 4 трубах квадратного или круглого сечения;
Отдельно для трактора можно сделать ковш, который позволит эксплуатировать сельскохозяйственную машину в качестве погрузчика;
На последнем этапе потребуется нанести на металлические поверхности самодельного трактора из автомобиля ГАЗ качественный грунтовочный состав, после чего покрасить агрегат – это необходимо для защиты трактора от коррозии. Более подробно о сборке трактора из автомобиля ГАЗ расскажет видео.
Выполнив все перечисленные действия, можно заправить трактор из автомобиля ГАЗ, залить в соответствующие баки необходимые масла, и приступить к испытанию агрегата. Поначалу самодельная техника должна поддаваться минимальным нагрузкам – это поможет проверить состояние деталей, а также вовремя заметить и устранить любую обнаруженную неисправность. В дальнейшем трактор-погрузчик на базе ГАЗ 66 можно эксплуатировать, используя весь его ресурс.
Трактор на базе мотоблока
Соответствующий проект основывается на использовании шарнирной или цельнометаллической рамы от мотоблока.

Первая приветствует установку двигателя спереди. Для этого необходимо посредством сварки и профильной трубы изготовить треугольную либо Т-образную раму.


При использовании полуприцепа рама может предусматривать фаркоп. Иногда соответствующая схема способствует неправильной развесовке, из-за чего приходится смещать водительское место вперед.
Чтобы конструкция мотоблока была устойчивой, необходимо придерживаться следующих моментов:
- Мотоблок должен располагаться сзади;
- Задняя колея должна быть увеличена;
- Диаметр колес не должен быть меньше 14 дюймов.

Если делаем самодельный трактор из мотоблока, то переднюю балку придется дополнять рулевой трапецией. Также доработки потребует коробка передач.

Однако есть и преимущество – благодаря готовой цельнометаллической раме и силовой системе уже приходится прибегать к меньшему объему сварочных работ. Подбор механизмов преимущественно исключен за счет наличия единой силовой системы.

Правда, требования у всех разные, поэтому иногда мини-трактор надо дополнять. Например, кто-то предпочитает использовать дизельный двигатель для экономного расхода топлива и увеличения крутящего момента.
Другие хотят полный привод, что требует подбора нужной трансмиссии.
Комплектация мини-трактора
Что касается размещения агрегатов мини-трактора, то это известный всем факт. Если говорить о классическом варианте компоновки, то она выглядит следующим образом:
- мотор находится спереди конструкции (над передней осью, в продольном положении);
- коробка передач крепится к мотору через сцепление;
- за трансмиссией идет раздаточная коробка;
- замыкает черед агрегатов ведущий мост;
- соединение достигается путем установки муфт (карданов).

Схема типов компоновок тракторов
Мастера утверждают, что излишние расчеты и чертежи вам не нужны. Лучше всего изготовить раму и последовательно доводить все до ума. Для временных опор можно использовать обычные брусья из дерева. Когда вы найдете идеальное положение и соединение всех узлов конструкции, тогда можно все изготавливать и собирать.
Еще полезно: Как сделать ручной культиватор.
Главное, не забывать о резиновых подушках, которые будут гасить вибрацию. Все компоненты должны крепиться на такие опоры. Также необходимо правильно распределить общий вес. Лучше всего разделение: 60% (на ведущие колеса) на 40% (на управляемые). Эта схема позволит наилучшим образом управлять техникой.

Стандартная компоновка самодельного трактора
Самодельные минитрактора
Идеально подходят для обработки небольших площадей. Собрать их может практически каждый, кто разбирается в технике даже на минимальном уровне.
Как сделать минитрактор из мотоблока Нева
Сначала приобретаем сам мотоблок, на который уже заранее смонтирована зацепка, заводская или в виде самоделки. Тогда можно будет присоединить прицепы с кузовом, на которых легко транспортируется груз, вне зависимости от размеров. Есть и другие дополнительные детали, придающие комфорта при использовании:
- Педали тормоза и газа.
- Сиденье.
- Автомобильный руль.
Объем мотоблоков «Нева» обычно находится в пределах 6-8 литров. Потому мини-трактор с такой основой требует минимального количества доработок.
Если есть электросварка и болгарка вместе с дополнительными инструментами, самосвал можно создать собственными силами. Главное – придать специальную конструкцию креплению рамы, и сделать так, чтобы минитрактор из мотоблока мог наклонять прицеп, поворачивать его. Органы управления у данных устройств дублируют друг друга, потому мотоблок можно использовать отдельно, просто разобрав маленький трактор.
Самодельный минитрактор из мотоблока «Зубр»
Из необходимых деталей:
- Рама.
- Цилиндр с тормозом.
- Подножные механизмы, педали.
- Колонка руля, в комплекте с тягами.
- Балка впереди, соединяется со ступицами и дисками для тормоза.
- Крылья в задней части.
- Задняя навеска с ручным подъемником.
Последний шаг – совместная сборка, при использовании молотка и дрели, гаечных ключей с аппаратом для сварки. Дополнительно впереди устанавливаются колеса. Двигатель крепится к раме во фронтовой части, поэтому во время работы минитрактор сохраняет баланс. На одной оси со шкивом на заднем мосту техники располагается вал отбора мощности. Ременная передача помогает передавать усилие от одной части к другой. Натяжение ремней и регулировка облегчатся, если крепление мотора будет плавающим.
Минитрактор на базе мотоблока МТЗ
Данный мотоблок имеет одно отличие от других стандартных моделей – оснащение двухцилиндровым дизельным двигателем. Это приводит к тому, что центр с тяжестью оказывается впереди, когда устройство активно работает. Из-за чего рабочий процесс заметно усложняется. Но можно устранить проблему, действуя следующим образом:
- Используем режим работы с косилками.
- Площадка впереди демонтируется в полном объеме.
- Ее заменяет колесо из передней части мотоцикла, для чего используем болты. В это же время ставится руль управления.
- В верхней части рамы располагается ниша, куда устанавливается рулевая тяга. Сюда надо закрепить и тягу регулировочную, тогда конструкция получит прибавку к прочности и твердости.
- Электросваркой соединяем площадку и крепление для места водителя.
- У двигателя должна находиться дополнительная площадка, куда ставится гидрораспределитель с аккумулятором.
- Заднюю часть соединяем с дополнительной рамой из металла, для системы гидравлики.
- Переднее мотоциклетное место идеально для расположения ручного тормоза.
Получим компактный мини-трактор с тремя колесами.
Минитрактор из мотоблока Агро
Как и всегда, заранее готовим несколько основных деталей — это рулевое управление и тормозная система, дополнительные колеса, гидравлическая система. Гидравлика нужна, чтобы система нормально работала в комплексе с навесным оборудованием. Дополнительные колеса легко взять у обычного автомобиля.
В случае с мотоблоком Агро понадобятся дополнительные действия по усилению ведущей полуоси вместе с колесными редукторами. Допустим вариант, когда двигатель у устройства располагается позади. Тогда нагрузка будет распределяться максимально равномерно.
Минитрактор с мотоблока Кентавр своими руками
Мотоблоки Кентавр относятся к разновидностям профессионального оборудования, предназначенного для выполнения сельскохозяйственных работ. Потому в итоге мини-трактор будет обладать высокой производительностью.
Ключевым узлом становится двигатель, с мощностью до 9 лошадиных сил. Надо использовать металлический профиль, чтобы изготовить раму для этой конструкции. Устанавливаем сиденье вместе с колесной парой. Допустимо дополнительное оснащение в виде прицепа, который помогает перевозить малогабаритные грузы. Другими полезными дополнениями можно назвать однолемеховые плуги и отвалы.
Преимущества и недостатки ручной сборки
Пожалуй, главным преимуществом самодельного минитрактора является безусловная экономия денежных средств, по сравнению с приобретением полноценных агрегатов в магазине, таких как Уралец, Кубота, Булат 120, Янмар, Беларусь 132н, Скаут.
При этом, его рабочие показатели будут ненамного отличаться от заводских вариантов, потому что в конструкции используется достаточно мощный мотор, которого вполне хватает для обработки земельных владений, площадью до десяти гектар.

Преимущества
Затраты на изготовление на минитрактора окупаются практически за один календарный год, ведь большинство комплектующих берется от старой технике, либо затраты на их приобретение минимальны. Многие приспосабливают под минитрактор прочую технику, такую, как мотоблок, что ещё более упрощает процесс сборки.
Кроме того, у самодельных агрегатов есть и другие плюсы:
- Относительно большая степень погружения в почву. Если все грамотно предусмотреть, глубина вскапывания будет идентична той, что показывают покупные аналоги. Как бы то ни было, это все равно лучше, чем перекапывать огород вручную.
- Достаточно высокая мобильность, в следствие достаточно скромных габаритов. Использование подобных агрегатов целесообразно именно на небольших огородах и дачных участках, где крупногабаритным тракторам не развернуться.
- В силу того, что вы изготавливаете минитрактор сами, существует возможность дополнительной модернизации агрегата. Можно снимать комплектующие, меняя их на другие, более мощные, либо добавлять новые устройства.
- В продаваемых минитракторах такая возможность отсутствует, более того, в инструкциях по эксплуатации прямо написано, что внесение каких-либо изменений в конфигурацию строго запрещено.

Недостатки
В числе недостатков можно отметить следующие моменты:
- Относительно сложный процесс сборки. Здесь речь идет не только о непосредственной работе, но и об определенных сложностях в подборке нужных комплектующих. Многие из них приходится подгонять на токарном станке, что само по себе представляет дополнительную сложность.
- Вероятность поломок, ведь самодельный вариант изготавливается, в основном, из старых деталей и запчастей.
В принципе, плюсы и минусы примерно равны по степени их важности, но тут есть одно маленькое отступление. Сегодняшние реалии таковы, что вопрос цены становится главенствующим, затмевающим прочие аргументы
Минитрактор из мотоблока своими руками
Для того, чтобы сделать миниатюрный трактор из мотоблока своими руками, Вам понадобятся:
- болгарка;
- детали для крепления;
- швеллеры и трубы;
- приспособление для сверления;
- электрическая сварка;
- измерительные инструменты (уголок, рулетка, штангенциркуль);
- мелкий ручной инструмент (отвертка, ключи, молоток и т. д.).
Также необходимо приобрести готовый комплект для переделки мотоблока в минитрактор. Это будет основная статья расходов, но экономить на данном оборудовании не стоит, дабы не ставить под сомнение качество будущего изделия.
Еще необходимо подобрать удобные и качественные руль, сиденье, колеса и педали. Когда все необходимые комплектующие подобраны, можно приступать к созданию чертежа. Не стоит пренебрегать этим этапом – с четкими чертежами и схемами Вам намного проще и быстрее будет работать. Ниже на фото приведены примеры простейших чертежей для самостоятельной переделки мотоблока в минитрактор.


Хороший самодельный минитрактор с двигателем от мотоблока может получиться лишь тогда, когда исходный агрегат обладает хорошей мощностью и производительностью. Идеально подойдут для переделки тяжелые дизельные мотоблоки. Они довольно экономичные, имеют большой вес, обладают немалой мощностью, продуктивные и выносливые. Все эти параметры позволят сделать из мотоблока полноценный минитрактор, способный вспахивать тяжелые грунты и работать долгое время без перерывов.
Процесс переделки в целом проводится по одному алгоритму, с незначительными отличиями для разных моделей. Общая схема переделки мотоблока в минитрактор выглядит следующим образом.
Подготовка рамы
Поскольку для минитрактора понадобится еще одна пара колес, то и конструкцию рамы придется усовершенствовать и усилить. Для изготовления новой рамы используются металлопрофиль или металлическая труба. Толщину и размер заготовок стоит подбирать исходя из индивидуальных предпочтений, учитывая мощность будущего агрегата. Составляющие будущей рамы вырезаются болгаркой и соединяются сваркой. Целесообразно усилить конструкцию поперечной перекладиной. Позаботьтесь также о месте крепления навесного оборудования и о фаркопе, если планируете использовать прицеп.
Ходовая система
Передние колеса крепятся на отрезок трубы подходящего диаметра. На нее в свою очередь крепятся готовые колесные ступицы с тормозными колодками. В центре конструкции проделывается отверстие, через которое она будет присоединена к раме. Далее к раме через червячный редуктор монтируются рулевые тяги. В конце устанавливается собственно руль.
Для установки задней оси во втулки запрессовываются подшипники. На саму ось крутящий момент будет передавать шкив. Колеса можно оставить от предыдущего агрегата, можно подобрать новые, с более мощным протектором и большей шириной. Диаметр колес для будущего минитрактора рекомендовано подбирать размером от 12 дюймов.
Монтаж двигателя
Двигатель рекомендуется монтировать на передней балке рамы. Это улучшит балансировку агрегата
Важно предусмотреть, чтоб вал отбора мощности находился параллельно к шкиву заднего моста. Это убережет ременную передачу от износа
Дополнительные системы
Когда проделана основная часть работы, устанавливается тормозная система и система управления навесным оборудованием. Также не лишней будет установка осветительных приборов.
После полной сборки минитрактор должен пройти обкатку соответственно с требованиями инструкции по эксплуатации к мотоблоку.
Рассмотрим подробнее, как легко и быстро можно переделать в минитрактор мотоблоки разных моделей.
Рама трактора
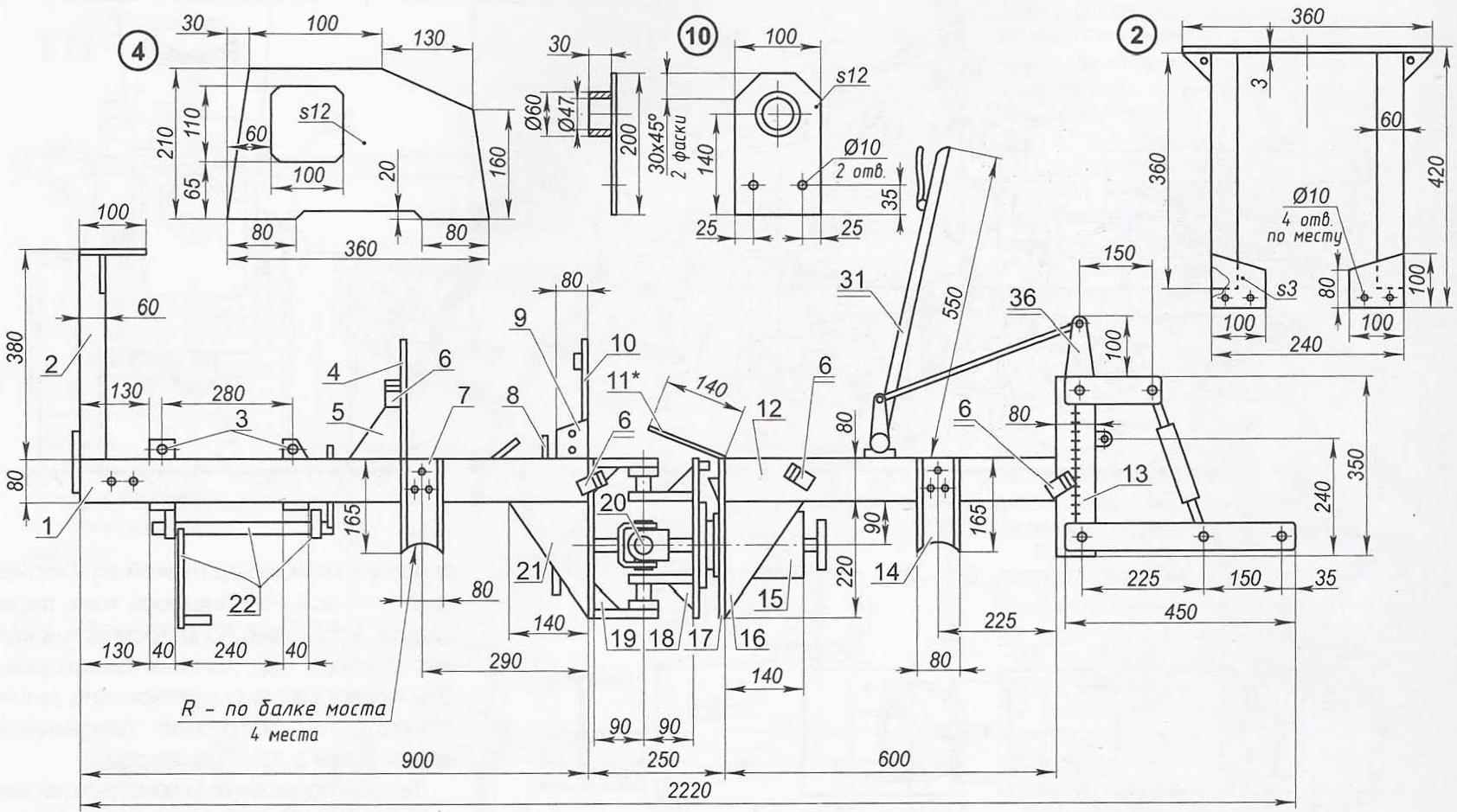
Мы поговорим о наиболее простом варианте трактора. На чертеже ниже все подробно расписано и указано, так что ошибиться будет сложно. Используя его, вы легко создадите верного помощника у себя дома.

Чертеж простого самодельного трактора
Трактор своими руками в домашних условиях изготавливают из металлопроката. Делать расчеты на прочность довольно трудно, да и, по сути, не нужно. Главное — заложить достаточный запас в каркас, поэтому следует брать швеллер с номером от 6 до 12. Не стоит огибать конструкцию – только усложните себе жизнь. А еще прибавьте стоимость строительства. Так что лучше сделать обычную, знакомую всем плоскую «лесенку».
Чтобы сделать прочную раму для траверса переднего и заднего, нужно брать швеллер до 20 размера включительно. Именно на эти траверсы в будущем будет крепиться различное оборудование, так что конструкция должна быть достаточно прочной.
Как показывает практика, размещение поперечин должно быть таким: полки стоит обращать внутрь, а вот швеллеры продольных балок или лонжеронов можно использовать в обоих направлениях. В лонжеронах закладываются топливопроводы и другие важные магистрали. Таким образом, рама защищает их без каких-либо дополнительных конструкций. Хороший пример рамы показан на фото ниже.

Надежная рама для агрегата
Чаще всего используют прямоугольную форму рамы, которая имеет два (или больше) траверса. Такой вариант простой и наиболее доступный. Но если вам нужна жесткость побольше, тогда стоит остановиться на трапеции (при этом ширина спереди будет меньше, а сзади – больше). Это необходимо для удобного установления колес управления, к тому же кругозор будет закрываться минимально. Сборка рамы подразумевает использование косынок, которые привариваются в местах, где траверсы соединяются с лонжеронами.
Мотоблок «МТЗ» 06

Мотоблок среднего уровня мощности, рассчитанный на выполнение целого ряда полевых и коммунальных работ. Имеет типичную для мотоблоков «МТЗ» одноосную конструкцию, которая приводится в действие 4-тактным бензомотором СК-6 с цилиндром 245см³ емкости. При аналогичном 5-й версии расходе бензина генерирует силу в 5,5 л.с
Компактен, что немаловажно для хранения и транспортировки. За счет рельефного протектора пневмошин мотоблок без пробуксовок преодолевает бездорожье и топкие места и не требует установки грунтозацепов. Преимущества:
Преимущества:
- надежность материально-технической оснастки, делающая агрегат практически «не убиваемым»;
- 6 рабочих режимов, среди которых 2 – для заднего хода;
- фрикционная муфта сцепления, управление которой осуществляется вручную;
- специальная сцепка, облегчающая навешивание вспомогательных устройств;
- разумная цена.
Эксплуатационные параметры:
- Ширина проезда – 0,45/0,6/0,7 м;
- Грузоподъемность – 650 кг;
- Колеса – 15 х 33 см;
- Габариты – 1,8/0,85/1,07 м;
- Вес – 135 кг.
Второй этап — чтение чертежей и сборка всей конструкции
Когда вы нашли необходимые чертежи можно переходить к поиску необходимых комплектующих и сборке их в единую систему.Помните, при поисках деталей уделите наибольшее внимание трем группам запчастей: двигателю, ходовой части и коробке передач — они должны быть сняты с одного вида техники, таким образом, не нужно будет выполнять их подгонку друг под друга
Выбор двигателя и трансмиссии
Двигатель УД-2
В выборе подходящих двигателей для самодельного минитрактора не блещет разнообразием, чаще всего приходится выбирать из того, что есть и больше всего подходит. Лучше всего по экономическим и производственным показателям, для установки на трактор такой конструкции, подходят 2 вида двигателя УД-2 или УД-4, но, вообще, можно использовать дизельные двигатели с одним или двумя цилиндрами. Можно, если удастся найти, использовать М-67, в его характеристиках основной является длительный срок службы при минимальных затратах на обслуживание.
Перед установкой такой двигатель обязательно модернизируется, в нем увеличивается передаточное число, также необходимо придумать систему охлаждения, так как на нем нет таковой. Для охлаждения можно устанавливать вентилятор, который крепится на коленвале с подведенным кожухом для направления потока воздуха.
Иногда в качестве силовой установки используют моторы от Москвичей или Жигулей. При этом, когда двигатели извлекаются из машин, вместе с ними достается и коробка передач с трансмиссией, помним, таким образом, не нужно выполнять подгонку и искать дополнительные детали.
Колеса выбираются исходя из целей для которых изготавливается транспорт. Если вы планируете использовать его только для перевозок грузов, их перетягивания и прочих подобных работ, то можно брать диски до 16 дюймов. Если предполагается использование минитрактора для полевых работ, лучше взять более массивные колеса с дисками от 18 до 24 дюймов, дабы улучшить качество сцепления колес с поверхностью.
Ломаная рама
Ломаная рама состоит из двух полу-рам, сцепление которых осуществляется шарнирным соединением. Чтобы сделать такое соединение можно использовать карданный вал с крупногабаритного грузового транспорта, например, ГАЗ-а. Если говорить именно о автомобилях ГАЗ, то не имеет значения, какая именно модель это будет, ведь в карданных валах любой из них нет практически никаких конструктивных особенностей. Саму раму лучше всего выполнять из швеллера, таким образом она будет достаточно прочной для выполнения абсолютно любых работ, а сам трактор способен выдерживать почти любые нагрузки.
Что касается отделки трактора, то ее можно выполнять из профиля любых характеристик. Так как прочность, например, для крыльев — это не самый важный показатель.
Некоторые особенности монтажа
Гидроцилиндр
Система управления в тракторах такого типа должна быть обязательно снабжена гидроцилиндрами, это значительно улучшит управляемость транспортного средства
Также нужно уделить внимание регулированию передаточного числа, оно должно выставляться на небольшие обороты. Это делается для того, чтобы трактор, при выполнении различных работ, не развивал слишком большую скорость
Подвеска всех колес трактора независимая и жесткая, поэтому чтобы колеса какой-либо части, задней или передней, не зависали при прохождении сложных участков, можно предусмотреть возможность рамы вращаться, достаточно 15 градусов. Делается это внедрением в ломающуюся систему вертлюга от УАЗа, устанавливается он в передней части задней полу-рамы. Чтобы не было возможности большего переворота на пластине шарнира приваривается ограничитель.
В итоге получается очень практичная машина, которая способна обеспечивать выполнение всех нужд, возникающих при ведении домашнего хозяйства. На трактор с легкостью можно цеплять всевозможные приспособления для вспашки угодий, прицепы для перевозки грузов, сенокосилки и прочие приспособления.
Сделать мини трактор своими руками может каждый, главное, запастись необходимым инструментом, материалом и терпением. В итоге получается полноценная многофункциональная машина, которая позволяет обеспечить выполнение всех хозяйственных нужд владельца. Высокая проходимость, простота в использовании, многофункциональность — это те плюсы, которые вы получите после монтажа самодельного трактора.
Поиск необходимых запчастей и сборка конструкции
Перед тем как начать поиск всех узлов и механизмов, следует знать, что коробка передач, двигатель и ходовая часть должны быть взяты с одного трактора — это позволит избежать сложной работы по подгонке узлов друг к другу.
Какой двигатель наиболее предпочтителен для самодельного трактора? Здесь выбор невелик: рекомендуется найти двигатель УД-2 или УД-4, неплохим вариантом станет двигатель М-67, так как он довольно экономичен и долговечен, требует минимального участия в обслуживании и ремонте. Некоторые народные умельцы в качестве силовой части использовали двигатели от автомобиля Жигули. В этом случае из автомобиля вынимается двигатель с коробкой передач и трансмиссией, отпадает необходимость подгонки механизмов друг к другу, что значительно облегчает сборку.
Перед тем как установить такой двигатель, следует его модернизировать. В нем отсутствует система охлаждения, для этого можно использовать вентилятор, который устанавливается на коленчатый вал. Необходимо установить и кожух, который будет направлять потоки холодного воздуха.
Если используется двигатель от легкового автомобиля, необходимо снизить его обороты в 3 раза с помощью соответствующих шестерней, так как для трактора не нужны такие высокие обороты.
Выбор колес зависит от того, для каких целей предназначен самодельный мини-трактор. Если целью использования машины является перемещение различных грузов, то можно обойтись и колесами на 16 дюймов. Если же трактор будет работать на поле и обрабатывать почву, рекомендуется использовать колеса большего диаметра — это обеспечит лучшее сцепление с грунтом. Если есть желание сэкономить на колесах, можно использовать и автомобильные покрышки, однако следует учитывать, что в этом случае сцепление с почвой может быть недостаточным, а управление может осложниться.
Заключение
Изготовление самодельного минитрактора становится все более актуальным, особенно для владельцев небольших земельных участков. Дело в том, что использование крупногабаритных тракторов может быть нецелесообразно, ведь они не смогут показать всех своих рабочих показателей на таком небольшом участке земли.
К тому же, затраты на горючее могут стать поистине неподъемной ношей для частных фермеров.
Экономией также объясняется и отказ от приобретения минитрактора в специальном магазине, ведь сельское хозяйство далеко не самый прибыльный вид бизнеса в нашей стране. Поэтому, для обычного дачника оптимальным вариантом будет именно изготовление агрегата своими собственными силами.
Затраты при этом копеечны, а работоспособность готового самодельного минитрактора может вас приятно удивить. Естественно, если использовать относительно мощный двигатель и не очень старые запчасти.
Не стоит забывать о том, что данный метод может не подойти для некоторых лиц, не имеющих должных навыков в обращении со сварочным аппаратом или токарным станком, к примеру. В таком случае, можно просто заказать нужные детали у мастеров, которые изготовят.
Придется, конечно, заплатить, но никак не больше той суммы, которую нужно отдать за готовый минитрактор.
А вот еще статья про самодельные гусеничные минитрактора.


































